おたくま経済新聞

ネットでの話題を中心に、商品レビューや独自コラム、取材記事など幅広く配信中!

【新築賃貸マンション】入居者募集開始!名古屋5棟目となるデュオフラッツシリーズ!/デュオフラッツ今池フレナ/東山線・桜通線「今池」駅徒歩2分

update:
株式会社フージャースホールディングス
HPにて全タイプバーチャルモデルルーム内覧可能。地域の特性がわかるエリアマップも掲載中。




2LDK/Fタイプ/バーチャルモデルルーム


不動産投資事業、収益不動産開発事業、不動産賃貸業、リノベーションマンション分譲事業等を展開する株式会社フージャースアセットマネジメント(本社:東京都千代田区、代表取締役社長:小川栄一、以下「当社」)は、新築賃貸レジデンス「デュオフラッツ今池フレナ」の入居者の募集を開始しました。

■物件の特徴
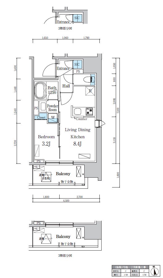
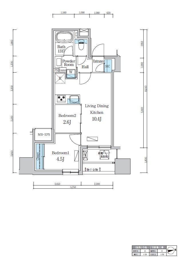
・全7タイプの多様な間取り
・柱の出っ張りがない壁式構造
・選べる2種類の内装カラー

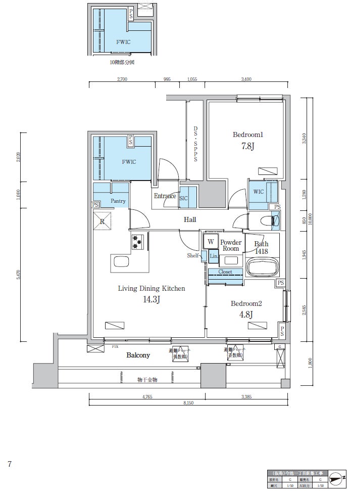
Dタイプ/LDK/奇数階

Dタイプ/キッチン/奇数階


Dタイプ/洗面/奇数階

Dタイプ/SIC/奇数階

Dタイプ/洋室2/奇数階


■物件概要
住所:愛知県名古屋市千種区今池1丁目(以下未定)
構造:RC造 地上12階建
総戸数:46戸
竣工日:2026年5月末(予定)
間取り: 1DK / 1LDK / 2LDK
面積帯:26.98平方メートル ~70.00平方メートル
駐車場:あり
バイク置場:あり
駐輪場:あり

■TOPICS
☆全7タイプの多様なプラン。ライフスタイルに合わせてお選びいただけます。

Dタイプ/2LDK

Cタイプ/1LDK

Gタイプ/2DK



☆充実の収納

Dタイプ/SIC

Eタイプ/CL

Aタイプ/SB



☆バーチャルモデルルーム内覧ができます
バーチャルモデルルームをご用意しました。
内覧のお時間がなかなか取れない方や竣工前でも、お部屋のイメージを見ていただくことができます。
物件の公式ホームページよりご覧いただけますので、是非ご活用ください。

デュオフラッツ今池フレナ 公式HP
https://www.duo-flats.jp/residence/imaike-hurena/

■デュオフラッツシリーズ
「新しい欲しかった暮らし」をコンセプトとし、全国に展開している賃貸マンションシリーズです。
物件ごとに間取り・仕様・デザインなど、どれをとっても顧客目線で考え抜いた物件ばかりです。物件の立地特性、お住まいになる方々の生活を細部まで紐解き、この住まいでどんな生活を楽しんでいただけるかを大事にしています。

デュオフラッツ公式HP
https://www.duo-flats.jp/


デュオフラッツ公式インスタグラム
https://www.instagram.com/duoflats_official?igsh=NzQydHBya2Z1MG9x&utm_source=qr
<株式会社フージャースアセットマネジメント 会社概要>
商   号  株式会社フージャースアセットマネジメント
本社所在地  東京都千代田区丸の内二丁目2番3号
設   立  2000年2月7日
事 業 内 容 不動産投資事業、収益不動産開発事業、不動産賃貸業
代表者氏名  小川 栄一
電 話 番 号  03-3243-2712
会 社 H P https://www.hoosiers.co.jp/company/guid/investment.html

本件に関するお問い合わせ先
株式会社フージャースアセットマネジメント
担当 井口
03-3243-2712
risa.iguchi@hoosiers.co.jp

最近の企業リリース

トピックス

  1. 「ギガ肥満」を燃やせ! mineo×筋肉紳士集団の異色コラボ 110キロの記者が悶絶体験

    デブ記者、マッチョに囲まれて筋トレする mineoの「ギガ肥満」解消イベントに行ってみた

    デブが筋トレをすると、それだけでちょっとした事件です。まして今回は、自分の体ではなくスマホの「ギガ肥…
  2. インターネットの最深部を疑似体験できるダークウェブ体験シミュレーター「Welcome to Underground」

    ダークウェブを疑似体験できるサイト登場 「Welcome to Underground」に背筋ひんやり

    数々のホラーコンテンツを手掛けてきた「株式会社闇」。同社のAIプロジェクト「YAMI AI」が、イン…
  3. 火も包丁も使わない ヒガシマル公式「丸ごとソーセージの炊き込みご飯」が背徳的なおいしさ

    火も包丁も使わない ヒガシマル公式「丸ごとソーセージの炊き込みご飯」が背徳的なおいしさ

    ヒガシマル醤油のロングセラー商品「うどんスープ」。うどんだけでなく様々な料理に使える万能調味料として…

編集部おすすめ

  1. Metaが詐欺対策をアピール 被害拡大の後に問われる継続性と先手対応

    Metaが詐欺対策をアピール 被害拡大の後に問われる継続性と先手対応

    Metaは3月11日(米国時間)、詐欺行為への対応強化と利用者保護に向けた最新の取り組みを発表しました。著名人のなりすまし広告や投資詐欺、ロ…
  2. 静岡県アニメモデル地マップ

    静岡県、アニメモデル地マップを配布 4作品17か所を掲載

    静岡県は、県内各地を舞台とするアニメのモデル地をまとめた「静岡県アニメモデル地マップ」を作成し、3月10日より県内各所で配布しています。対象…
  3. 「貴姫さまの憂鬱~あやかし探偵事件簿~」キービジュアル

    いのまたむつみキャラ原案、氷栗優作画「貴姫さまの憂鬱」連載へ 楊貴妃が現代京都で“あやかし探偵”

    Gakkenは、Webサイト「コミックノーラ」にて新作コミック「貴姫さまの憂鬱~あやかし探偵事件簿~」の連載を、3月26日10時から開始する…
  4. 「ウルトラエッグカツ丼」は税込979円(券売機店舗は税込980円)

    かつや「ウルトラエッグカツ」登場 「こういうのでいいんだよ」なおかずを全部のせ

    とんかつ専門店「かつや」が、期間限定メニュー「ウルトラエッグカツ定食」と「ウルトラエッグカツ丼」を、3月13日から販売すると発表しました。ロ…
  5. 「涼宮ハルヒの憂鬱」再放送 2006年と同じエピソード順で全14話

    「涼宮ハルヒの憂鬱」再放送 2006年と同じエピソード順で全14話

    テレビアニメ「涼宮ハルヒの憂鬱」が、放送開始20周年を記念して再放送されることが3月9日に発表されました。TOKYO MXとBS11での放送…
Xバナー facebookバナー ネット詐欺特集バナー

提携メディア

Yahoo!JAPAN ミクシィ エキサイトニュース ニフティニュース infoseekニュース ライブドア LINEニュース ニコニコニュース Googleニュース スマートニュース グノシー ニュースパス dメニューニュース Apple ポッドキャスト Amazon アレクサ Amazon Music spotify・ポッドキャスト
支援